THI CÔNG CẢI TẠO KIẾN TRÚC NHÀ CHÚ THÁI TẠI HÀ NỘI

THI CÔNG CẢI TẠO KIẾN TRÚC NHÀ CHÚ THÁI TẠI HÀ NỘI

Chủ đầu tư:
Chú Thái
Địa chỉ:
Nguyễn Tuân, Thanh Xuân, Hà Nội
Số tầng:
6
Loại hình:
Cải Tạo Nhà Liền Kề
Tổng diện tích:
68 m2
Đơn vị thiết kế:
AP Việt Nam

CẢI TẠO NHÀ CHÚ THÁI – LỘT XÁC KHÔNG GIAN SỐNG TẠI NGUYỄN TUÂN

Thông tin dự án

  • Chủ đầu tư: Chú Thái
  • Địa điểm: Nguyễn Tuân, Thanh Xuân, Hà Nội
  • Loại hình: Căn nhà liền kề
  • Diện tích sàn: 68m²
  • Quy mô: 6 tầng
  • Hạng mục: Cải tạo toàn diện – nội thất và kiến trúc

 

Tối ưu không gian – Nâng tầm trải nghiệm sống

Dự án cải tạo nhà liền kề 6 tầng của chú Thái tại Nguyễn Tuân là một bài toán thực tế về việc làm mới công trình hiện trạng đã xuống cấp, đồng thời nâng cao công năng và thẩm mỹ theo phong cách sống hiện đại, tiện nghi, đầy đủ công năng sử dụng cho đại gia đình.

 

Giải pháp cải tạo nổi bật

  • Đặt cột móng mới và làm lại mặt sàn
  • Xây dựng lại phần thô kiên cố, mới và thêm không gian lắp thang máy
  • Bố trí lại công năng giữa các tầng, tận dụng chiều cao để chia khu sinh hoạt chung và riêng hợp lý.
  • Tối ưu hệ thống chiếu sáng, điện, điều hòa đảm bảo vận hành tiết kiệm và thông minh.

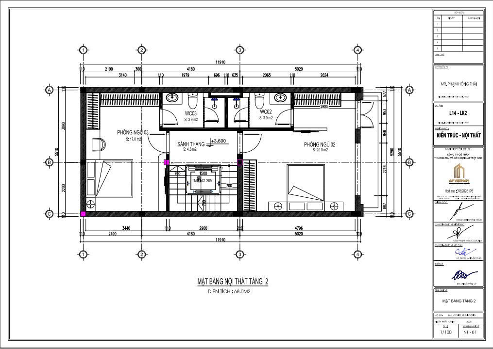
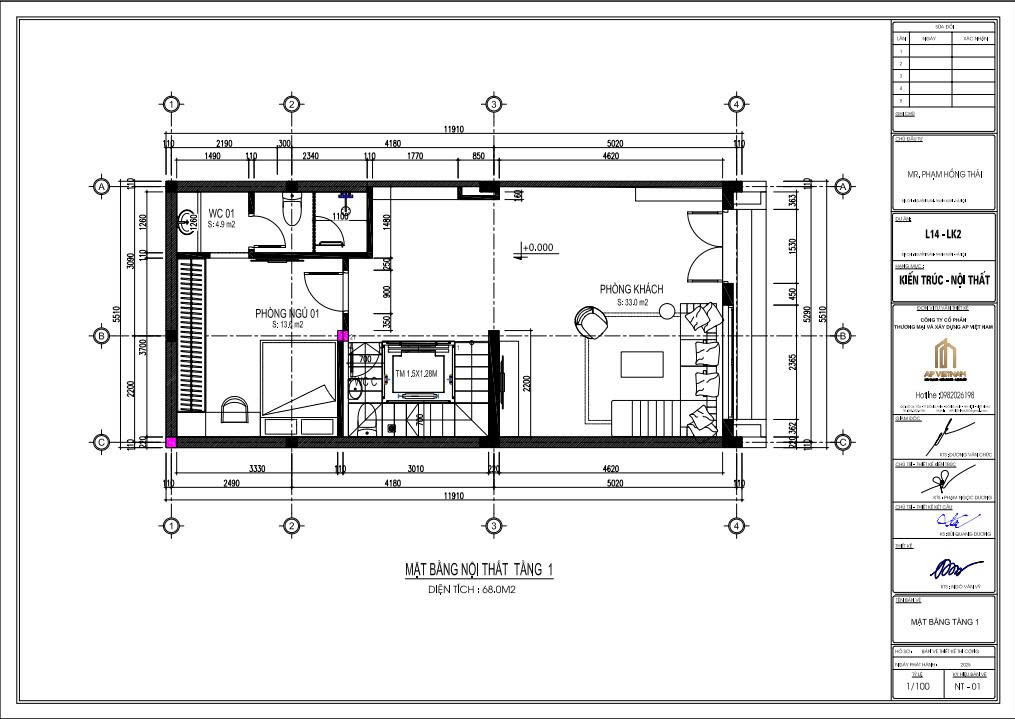
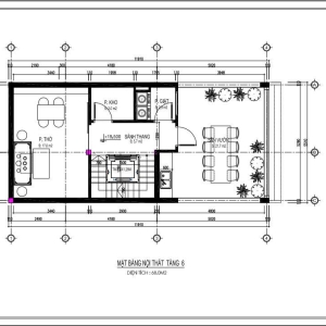
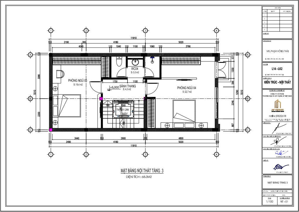
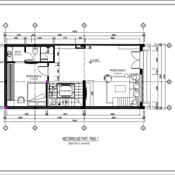
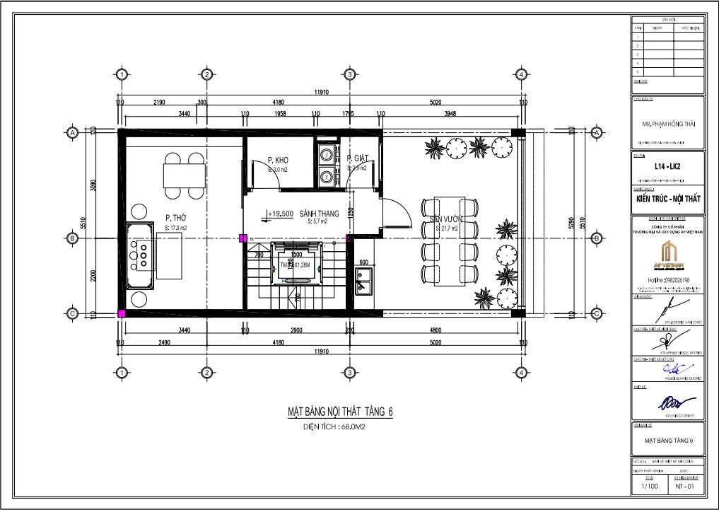
Cấu trúc cải tạo theo từng tầng

  • Tầng 1: Thiết kế lại khu vực gara, sảnh vào và phòng khách thân thiện, tiện nghi cùng phòng ngủ nhỏ
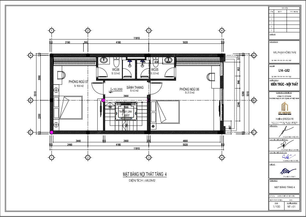
  • Tầng 2 & 3 & 4: Phòng ngủ, WC khép kín, đủ công năng phòng ngủ cho đại gia đình nhiều thành viên
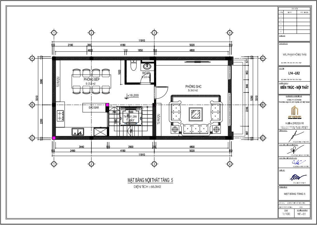
  • Tầng 5: Khu vực phòng bếp và phòng sinh hoạt chung của gia đình
  • Tầng 6: Phòng thờ, sân phơi và khu trồng cây thư giãn cùng không gian bàn tiệc BBQ ngoài trời

Vì sao chú Thái tin tưởng lựa chọn chúng tôi?

  • Kinh nghiệm cải tạo nhiều công trình liền kề, nhà phố đô thị
  • Khảo sát kỹ, tư vấn phương án phù hợp với hiện trạng thực tế
  • Thi công an toàn, đảm bảo kết cấu cũ
  • Báo giá minh bạch, tiến độ rõ ràng
  •  Hậu mãi chu đáo, bảo hành dài hạn