THI CÔNG TRỌN GÓI KIẾN TRÚC VÀ NỘI THẤT NHÀ PHỐ 5 TÁNG 1 TUM

THI CÔNG TRỌN GÓI KIẾN TRÚC VÀ NỘI THẤT NHÀ PHỐ 5 TÁNG 1 TUM

Chủ đầu tư:
Lê Văn Tỉnh
Địa chỉ:
Vũ Đức Thận, Long Biên, Hà Nội
Số tầng:
5
Loại hình:
Nhà Phố
Tổng diện tích:
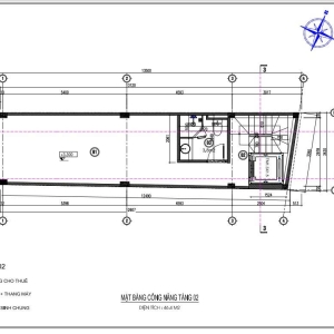
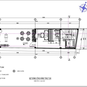
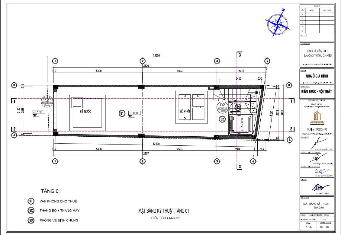
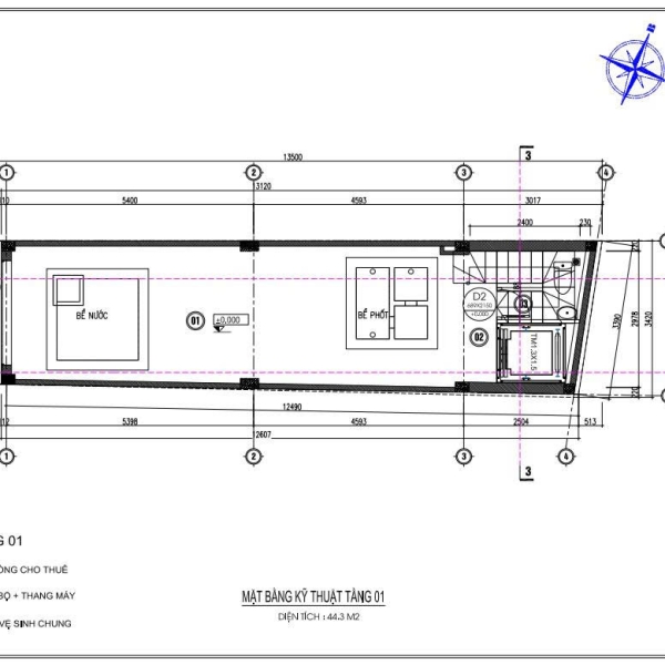
44,3 m2
Đơn vị thiết kế:
AP Việt Nam

AP Việt Nam hân hạnh được đồng hành cùng chủ đầu tư – anh Lê Văn Tỉnh trong dự án thi công trọn gói kiến trúc và nội thất tại Vũ Đức Thận, Long Biên, Hà Nội.

Thông tin dự án

  • Chủ đầu tư: Anh Lê Văn Tỉnh
  • Địa chỉ: Vũ Đức Thận, Long Biên, Hà Nội
  • Loại hình: Nhà phố
  • Quy mô: 5 tầng + 1 tum
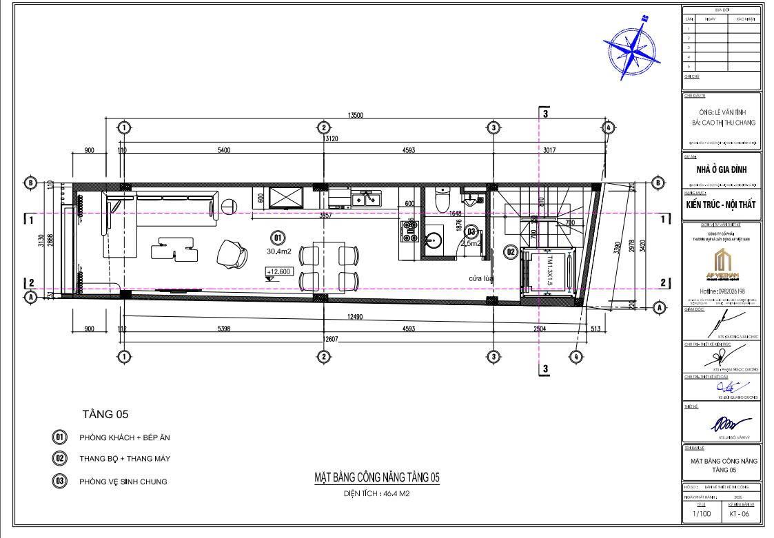
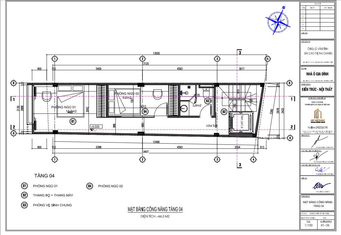
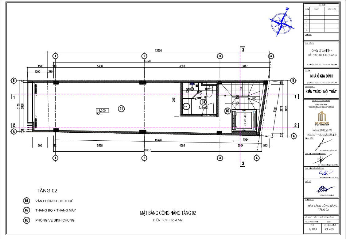
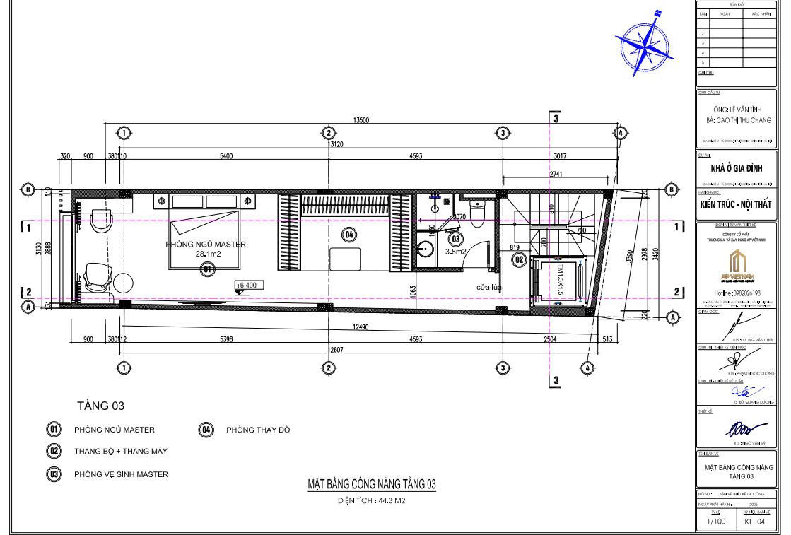
  • Tổng diện tích sàn: ~44,3m²

Đặc điểm và yêu cầu thi công, với đặc thù nhà phố mặt đường, công trình cần đáp ứng đồng thời:

  • Kết cấu kiên cố: chịu lực tốt, an toàn lâu dài.
  • Tối ưu công năng: diện tích đất hạn chế, cần bố trí khoa học để vừa đảm bảo sinh hoạt, vừa thuận lợi cho kinh doanh.
  • Thiết kế thẩm mỹ: mặt tiền sang trọng, hiện đại, tạo điểm nhấn trên trục đường chính.
  • Thi công nhanh gọn: hạn chế ảnh hưởng đến giao thông và môi trường xung quanh.

Vật liệu & chất liệu sử dụng, AP Việt Nam lựa chọn vật liệu chất lượng cao để đảm bảo tính bền vững và thẩm mỹ:

  • Kết cấu: bê tông cốt thép M250 đạt chuẩn.
  • Tường xây: gạch đặc/bê tông khí chưng áp giúp cách âm, cách nhiệt tốt.
  • Nội thất: gỗ công nghiệp An Cường chống ẩm, sơn Inchem, hệ thống chiếu sáng LED tiết kiệm điện.

Ưu điểm khi thi công trọn gói cùng AP Việt Nam

  • Đồng bộ kiến trúc & nội thất: thiết kế – thi công xuyên suốt, tránh chắp vá.
  • Tối ưu chi phí: báo giá minh bạch, không phát sinh ngoài hợp đồng.
  • Tiến độ đảm bảo: hoàn thiện đúng thời gian đã cam kết với chủ đầu tư.
  • Chất lượng vượt trội: công trình bền đẹp, nội thất hiện đại, tiện nghi.

Kết luận

Công trình nhà phố 5 tầng 1 tum tại Long Biên không chỉ là nơi an cư vững bền mà còn là bộ mặt sang trọng của gia đình trên trục đường chính. Với sự chuyên nghiệp, tận tâm và kinh nghiệm lâu năm, AP Việt Nam luôn là lựa chọn tin cậy cho khách hàng khi thi công trọn gói nhà phố.