Thiết Kế Thi Công Nội Thất Spa Chăm Sóc Sức Khỏe Alba Hotel Spa
1. Giới thiệu dự án
Dự án Alba Hotel & Spa là công trình thiết kế nội thất cao cấp được thực hiện với mục tiêu mang lại không gian thư giãn sang trọng, tinh tế và đậm chất nghệ thuật dành cho tệp khách hàng cao cấp. Không chỉ là nơi nghỉ dưỡng, Alba còn là điểm đến chăm sóc sức khỏe toàn diện, nơi khách hàng được đắm mình trong cảm giác an yên và cân bằng.

2. Phong cách thiết kế
Lấy cảm hứng từ phong cách Đông Dương hiện đại (Indochine Modern), không gian spa kết hợp hài hòa giữa sự cổ điển Á Đông và nét sang trọng đương đại. Tông màu chủ đạo là đen - trắng - vàng kim tạo nên cảm giác thanh lịch, quyền quý nhưng vẫn gần gũi và tinh tế.

Những chi tiết uốn lượn đặc trưng trong khung viền, cửa gỗ, gương soi và vách ngăn được xử lý khéo léo, tạo điểm nhấn duyên dáng cho từng khu vực.
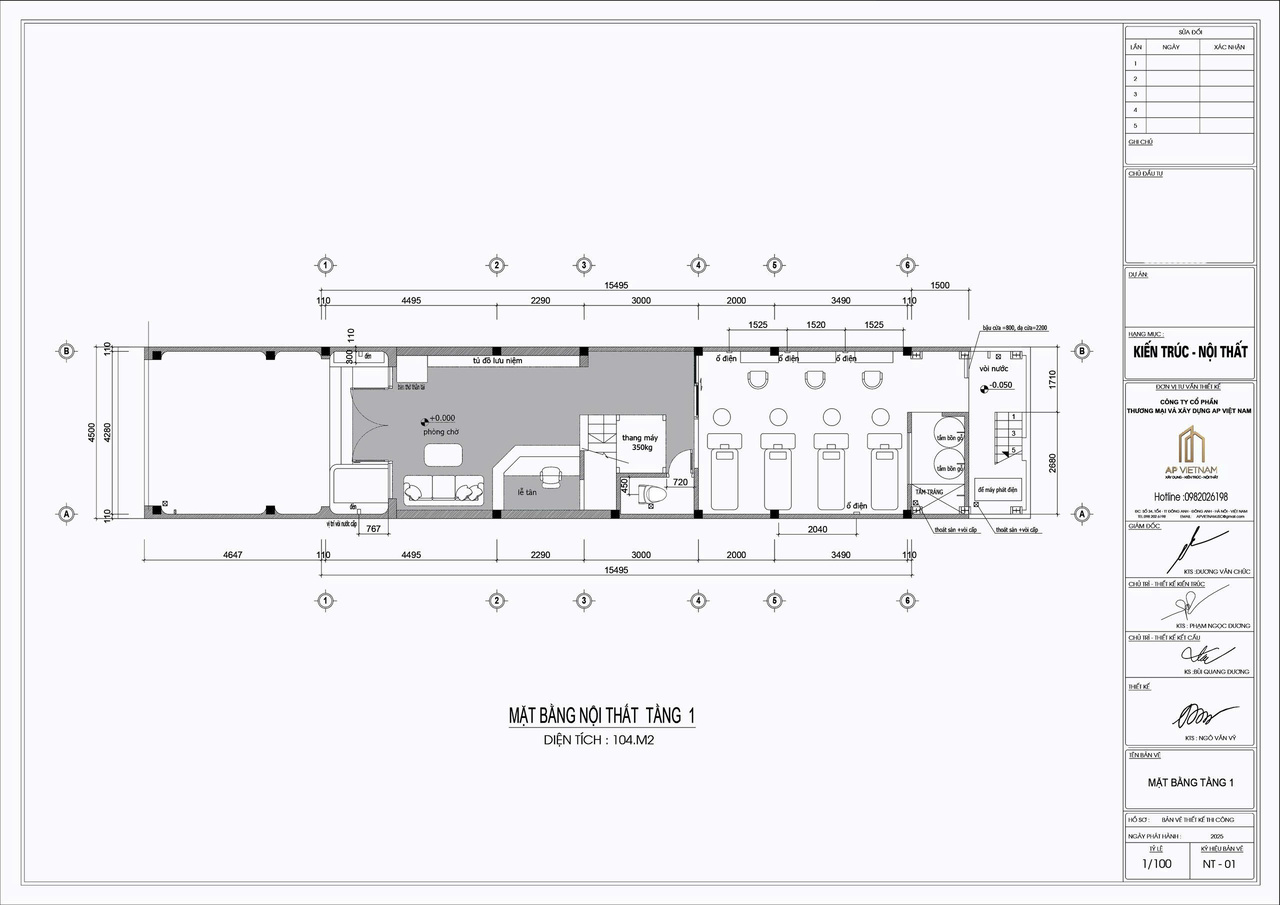
3. Không gian sảnh đón khách
Khu vực lễ tân được bố trí ngay trung tâm, nổi bật với bảng hiệu “ALBA Hotel and Spa” ánh vàng sang trọng. Quầy lễ tân ốp gỗ sẫm màu kết hợp đường cong mềm mại, mang lại cảm giác đẳng cấp và chuyên nghiệp. Bên cạnh đó là khu ghế chờ tiếp khách tinh tế với sofa bọc nệm sáng màu, bàn trà nhỏ và bình hoa tươi, tạo không khí ấm cúng và thư thái ngay từ cái nhìn đầu tiên.

4. Không gian chăm sóc và trị liệu
Khu spa được bố trí mở và linh hoạt, ngăn cách bằng rèm lụa nhẹ nhàng, đảm bảo sự riêng tư cho khách hàng mà vẫn giữ được sự thông thoáng, gần gũi.
Mỗi giường trị liệu được thiết kế tối giản nhưng tinh tế, kết hợp cùng đèn tre treo trần nghệ thuật và tường họa tiết lá nhiệt đới, mang hơi thở thiên nhiên vào trong không gian.
Sự kết hợp giữa ánh sáng ấm, vật liệu gỗ sẫm, và màu be nhẹ giúp giảm căng thẳng, mang lại cảm giác thư giãn tuyệt đối, đúng tinh thần của một spa chăm sóc sức khỏe cao cấp.

5. Vật liệu & chi tiết nội thất
Sàn lát gạch trắng viền đen hoa văn hình học tạo cảm giác sạch sẽ, sang trọng.
Gỗ tự nhiên sơn đen mờ kết hợp kim loại ánh vàng cho cảm giác hiện đại, bền vững.
Hệ đèn trang trí dạng chụp vải và gỗ uốn cong điểm nhấn nghệ thuật nhẹ nhàng, ấm áp.

Tranh treo tường nghệ thuật và đồ decor thủ công mang hơi hướng văn hóa Á Đông.
6. Tổng kết
Dự án Alba Hotel & Spa là minh chứng cho việc kết hợp hài hòa giữa nghệ thuật thiết kế nội thất và trải nghiệm cảm xúc người dùng. Mỗi đường nét, mỗi chất liệu đều được chăm chút tỉ mỉ để tạo nên không gian thư giãn chuẩn 5 sao nơi tái tạo năng lượng và cân bằng tinh thần.